5 Camere 343 m2
Caratteristiche principali
Codice
A000360
Prezzo
3.500 EUR / mese
Classe
A
Locali
5
Altre caratteristiche e accessori
Stato Immobile
Nuovo
Grado
Signorile
Lati Liberi
2
Riscaldamento
Autonomo
Canoni Anticipati
Fidejussione
Tipo Contratto
6+6 Anni
Numero Vetrine
Quattro
Destinazione
Commerciale
Accesso interno disabili
Pieno accesso
Tipo Registr.
Tradizionale
Isolamento termico
Cappotto esterno
Isolamento acustico
Isolamento completo
Metri altezza capannone
3
Mq uffici
343
Accessori
Aria Condizionata, Doppi Vetri, Parco Condominiale, Passaggio Automobilistico
🏢 Zona Industriale Olbia – Affittasi Locali Commerciali di Nuova Costruzione

Se cerchi spazi moderni e funzionali per far crescere la tua attività, questa è l’occasione giusta!
Disponiamo di capannoni, magazzini e locali commerciali di varie metrature e tipologie, ideali per ogni esigenza, dai 200 mq in su , anche per attivitĂ  industriale e/o artigianale.
✨ Caratteristiche principali:
Nuova costruzione, finiture di qualitĂ 
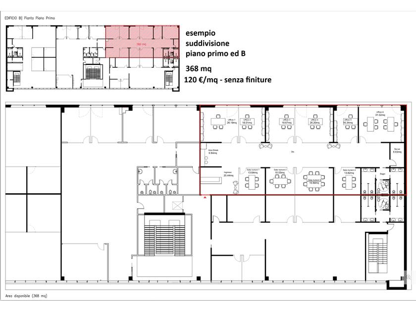
Questo è un esempio relativo ad ufficio direzionale di 343 mq.
PossibilitĂ  di abbinare zone operative
Ampi spazi di manovra e parcheggio
📍 Posizione strategica nella Zona Industriale di Olbia, facilmente raggiungibile dalle principali vie di comunicazione.

đź’Ľ Perfetti per logistica, artigianato, commercio, showroom o deposito.
👉 Non perdere questa opportunità! Contattaci subito per maggiori informazioni e per prenotare una visita.
SP 82 , Olbia (SS)
Cookie preference